大門駅徒歩4分の自由に造作が可能なスケルトン物件のご案内です。

ゲスト

営業時間:9:30~18:30(土日・祝日を除く)

ゲスト

大門駅徒歩4分の自由に造作が可能なスケルトン物件のご案内です。

居抜き市場トップ 居抜き物件、貸店舗を探す 都営浅草線 , 港区 大門駅徒歩4分の自由に造作が可能なスケルトン物件詳細

都営浅草線

大門駅

徒歩4

所在地

港区芝大門・・・詳細は

貸店舗(スケルトン)のエントランス
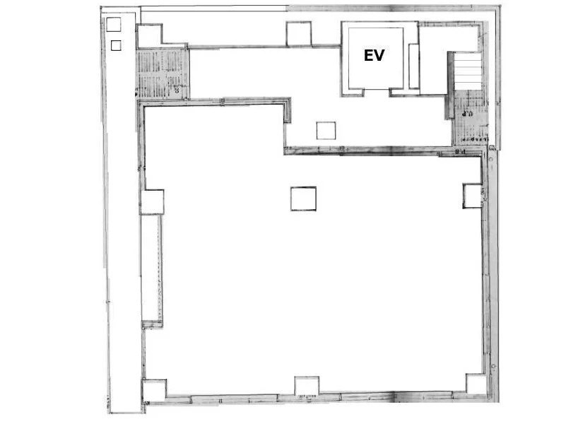
貸店舗(スケルトン)の平面図

ログイン後に

物件情報の全てがご覧いただけます。

会員登録(無料)
大門のスケルトン店舗物件の周辺

ログイン後に

物件情報の全てがご覧いただけます。

会員登録(無料)
大門のスケルトン店舗物件のその他

ログイン後に

物件情報の全てがご覧いただけます。

会員登録(無料)
大門のスケルトン物件の外観

ログイン後に

物件情報の全てがご覧いただけます。

会員登録(無料)
貸店舗(スケルトン)のエントランス
貸店舗(スケルトン)の平面図
大門のスケルトン店舗物件の周辺
大門のスケルトン店舗物件のその他
大門のスケルトン物件の外観
賃料

762,300円(税込)

階数/面積

1F / 32.99坪 (109.09㎡)

敷金・保証金

8ヶ月分

飲食条件

軽飲食可

物件タイプ/現業態

スケルトン

※会員限定の
情報
ございます。

会員限定の情報がございます。

会員登録(無料)をしていただくと、 物件詳細、物件資料のダウンロード、地図での立地確認など 会員限定の公開情報を閲覧・取得できるようになります。

会員登録(無料)

都営三⽥線『大門駅』徒歩4分、軽飲食相談可能な貸テナントのご紹介です。周辺はオフィスビル・メーカー事務所が点在しており、物販・テイクアウト・喫茶需要が期待できます。以前は印刷店が営業していました。各業種、お問合せください!

物件概要

会員登録(無料)をすることで
物件情報の全てがご覧いただけます。

会員登録(無料)をしていただくと、他社には出回っていない物件情報の収集、
非会員の方には閲覧できない詳細情報、物件資料のダウンロード、
地図での立地確認など会員限定公開情報を閲覧・取得できるようになります。

会員登録(無料)

地図

会員登録後にご覧いただけます。

会員登録(無料)
×
区分
新着・未公開物件情報

登録で 会員規約プライバシーポリシー に同意したものとします。

※必須

会員登録(無料)
物件詳細や公開情報がご覧になれます!