千代田区鍛冶町にある1階のBAR・ショットバー居抜き物件のご案内です。

ゲスト

営業時間:9:30~18:30(土日・祝日を除く)

ゲスト

千代田区鍛冶町にある1階のBAR・ショットバー居抜き物件のご案内です。

居抜き市場トップ 居抜き物件、貸店舗を探す JR山手線 , 千代田区 千代田区鍛冶町にある1階のBAR・ショットバー居抜き物件詳細

JR山手線

神田駅

徒歩1

所在地

千代田区鍛冶町・・・詳細は

神田の居抜き店舗の内装
BAR・ショットバーの居抜き物件の内装

ログイン後に

物件情報の全てがご覧いただけます。

会員登録(無料)
神田のBAR・ショットバー居抜きの厨房

ログイン後に

物件情報の全てがご覧いただけます。

会員登録(無料)
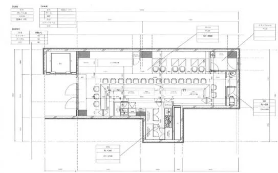
BAR・ショットバーの居抜き物件の平面図

ログイン後に

物件情報の全てがご覧いただけます。

会員登録(無料)
神田のBAR・ショットバー居抜きの外観

ログイン後に

物件情報の全てがご覧いただけます。

会員登録(無料)
神田の居抜き店舗の内装
BAR・ショットバーの居抜き物件の内装
神田のBAR・ショットバー居抜きの厨房
BAR・ショットバーの居抜き物件の平面図
神田のBAR・ショットバー居抜きの外観
賃料

1,016,400円(税込)

階数/面積

1F / 18.47坪 (61.09㎡)

敷金・保証金

10ヶ月分

造作代金

相談

飲食条件

飲食可(重飲食不可)

物件タイプ/現業態

居抜き / BAR・ショットバー

※会員限定の
情報
ございます。

会員限定の情報がございます。

会員登録(無料)をしていただくと、 物件詳細、物件資料のダウンロード、地図での立地確認など 会員限定の公開情報を閲覧・取得できるようになります。

会員登録(無料)

JR山手線『神田駅』から徒歩1分、バー居抜き物件のご案内です。飲食店が多く立ち並ぶ神田金物通りに面し、昼夜・曜日問わず人通りの絶えない集客が期待できるエリアです。ビストロやバル等にもおすすめです。諸条件等、お気軽にお問合せください。

物件概要

会員登録(無料)をすることで
物件情報の全てがご覧いただけます。

会員登録(無料)をしていただくと、他社には出回っていない物件情報の収集、
非会員の方には閲覧できない詳細情報、物件資料のダウンロード、
地図での立地確認など会員限定公開情報を閲覧・取得できるようになります。

会員登録(無料)

地図

会員登録後にご覧いただけます。

会員登録(無料)
×
区分
新着・未公開物件情報

登録で 会員規約プライバシーポリシー に同意したものとします。

※必須

会員登録(無料)
物件詳細や公開情報がご覧になれます!