1階路面、東村山市秋津町のラーメン居抜き物件のご案内です。

ゲスト

営業時間:9:30~18:30(土日・祝日を除く)

ゲスト

1階路面、東村山市秋津町のラーメン居抜き物件のご案内です。

居抜き市場トップ 居抜き物件、貸店舗を探す JR武蔵野線 , 東村山市 1階路面、東村山市秋津町のラーメン居抜き物件詳細

JR武蔵野線

新秋津駅

徒歩2

所在地

東村山市秋津町・・・詳細は

ラーメンの居抜き物件の内装
ラーメンの居抜き物件の外観

ログイン後に

物件情報の全てがご覧いただけます。

会員登録(無料)
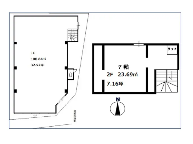
新秋津のラーメン居抜きの平面図

ログイン後に

物件情報の全てがご覧いただけます。

会員登録(無料)
ラーメンの居抜き物件の内装
ラーメンの居抜き物件の外観
新秋津のラーメン居抜きの平面図
賃料

250,000円(税込)

階数/面積

1F / 40.09坪 (132.53㎡)

敷金・保証金

3ヶ月分

造作代金

相談

飲食条件

飲食可

物件タイプ/現業態

居抜き / ラーメン

※会員限定の
情報
ございます。

会員限定の情報がございます。

会員登録(無料)をしていただくと、 物件詳細、物件資料のダウンロード、地図での立地確認など 会員限定の公開情報を閲覧・取得できるようになります。

会員登録(無料)
  • 路面店

JR武蔵野線『新秋津』駅から徒歩2分!ラーメン店居抜き物件のご紹介です。秋津中通り沿いの角地1階店舗で視認性良好!1階はカウンター席・テーブル席が並ぶゆったりとした店舗、2階は休憩室兼倉庫として利用可能です。諸条件等、お気軽にお問合せください。

物件概要

会員登録(無料)をすることで
物件情報の全てがご覧いただけます。

会員登録(無料)をしていただくと、他社には出回っていない物件情報の収集、
非会員の方には閲覧できない詳細情報、物件資料のダウンロード、
地図での立地確認など会員限定公開情報を閲覧・取得できるようになります。

会員登録(無料)

地図

会員登録後にご覧いただけます。

会員登録(無料)
×
区分
新着・未公開物件情報

登録で 会員規約プライバシーポリシー に同意したものとします。

※必須

会員登録(無料)
物件詳細や公開情報がご覧になれます!