重飲食可能な1階路面の居抜き物件のご案内です。

ゲスト

営業時間:9:30~18:30(土日・祝日を除く)

ゲスト

重飲食可能な1階路面の居抜き物件のご案内です。

居抜き市場トップ 居抜き物件、貸店舗を探す 小田急小田原線 , 座間市 重飲食可能な1階路面の居抜き物件情報

小田急小田原線

相武台前駅

徒歩1

所在地

座間市相武台・・・詳細は

相武台前のテイクアウト居抜きのエントランス
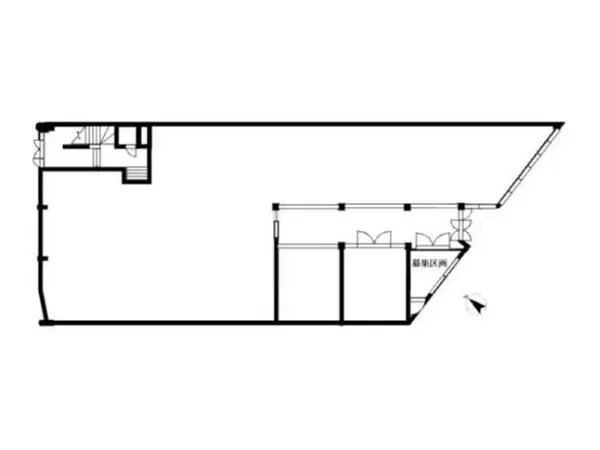
相武台前の居抜き店舗の平面図

ログイン後に

物件情報の全てがご覧いただけます。

会員登録(無料)
相武台前のテイクアウト居抜きのエントランス
相武台前の居抜き店舗の平面図
賃料

77,000円(税込)

階数/面積

1F / 4.17坪 (13.8㎡)

敷金・保証金

4ヶ月分

造作代金

相談

飲食条件

重飲食可

物件タイプ/現業態

居抜き / テイクアウト

※会員限定の
情報
ございます。

会員限定の情報がございます。

会員登録(無料)をしていただくと、 物件詳細、物件資料のダウンロード、地図での立地確認など 会員限定の公開情報を閲覧・取得できるようになります。

会員登録(無料)
  • 路面店

小田急線『相武台前駅』南口から徒歩1分、通り沿いの視認性良好な路面店!弁当テイクアウト店の居抜き物件が出ました。昨今大人気のコンパクト物件です。お問合せはお早めに!

物件概要

会員登録(無料)をすることで
物件情報の全てがご覧いただけます。

会員登録(無料)をしていただくと、他社には出回っていない物件情報の収集、
非会員の方には閲覧できない詳細情報、物件資料のダウンロード、
地図での立地確認など会員限定公開情報を閲覧・取得できるようになります。

会員登録(無料)

地図

会員登録後にご覧いただけます。

会員登録(無料)
×
区分
新着・未公開物件情報

登録で 会員規約プライバシーポリシー に同意したものとします。

※必須

会員登録(無料)
物件詳細や公開情報がご覧になれます!