大山駅徒歩3分のスケルトン店舗物件のご案内です。

ゲスト

営業時間:9:30~18:30(土日・祝日を除く)

ゲスト

大山駅徒歩3分のスケルトン店舗物件のご案内です。

居抜き市場トップ 居抜き物件、貸店舗を探す 東武東上線 , 板橋区 大山駅徒歩3分のスケルトン店舗物件詳細

東武東上線

大山駅

徒歩3

所在地

板橋区大山東町・・・詳細は

大山のスケルトン店舗物件の内装
大山のスケルトン店舗物件の内装

ログイン後に

物件情報の全てがご覧いただけます。

会員登録(無料)
貸店舗(スケルトン)の内装

ログイン後に

物件情報の全てがご覧いただけます。

会員登録(無料)
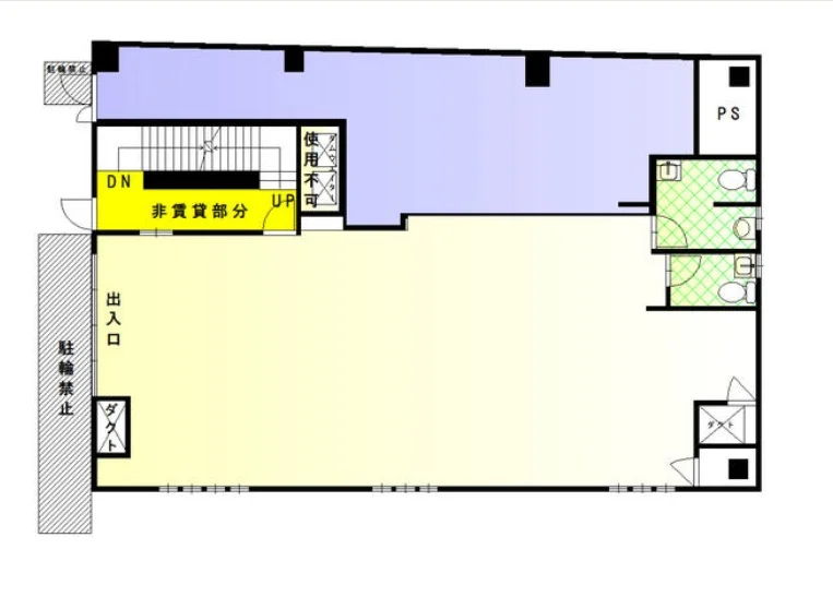
大山のスケルトン物件の平面図

ログイン後に

物件情報の全てがご覧いただけます。

会員登録(無料)
大山のスケルトン物件の厨房

ログイン後に

物件情報の全てがご覧いただけます。

会員登録(無料)
貸店舗(スケルトン)の厨房

ログイン後に

物件情報の全てがご覧いただけます。

会員登録(無料)
貸店舗(スケルトン)のその他

ログイン後に

物件情報の全てがご覧いただけます。

会員登録(無料)
大山のスケルトン物件のその他

ログイン後に

物件情報の全てがご覧いただけます。

会員登録(無料)
大山のスケルトン物件の外観

ログイン後に

物件情報の全てがご覧いただけます。

会員登録(無料)
大山のスケルトン店舗物件の内装
大山のスケルトン店舗物件の内装
貸店舗(スケルトン)の内装
大山のスケルトン物件の平面図
大山のスケルトン物件の厨房
貸店舗(スケルトン)の厨房
貸店舗(スケルトン)のその他
大山のスケルトン物件のその他
大山のスケルトン物件の外観
賃料

748,000円(税込)

階数/面積

1F / 44.58坪 (147.39㎡)

敷金・保証金

6ヶ月分

飲食条件

飲食可

物件タイプ/現業態

スケルトン

※会員限定の
情報
ございます。

会員限定の情報がございます。

会員登録(無料)をしていただくと、 物件詳細、物件資料のダウンロード、地図での立地確認など 会員限定の公開情報を閲覧・取得できるようになります。

会員登録(無料)

東武東上線『大山駅』徒歩2分!飲食店相談可能な貸テナントのご案内です。直近は居酒屋が営業していました。駅近で遊座大山商店街から少し入った1階店舗物件です。各業種等、ご相談ください。

物件概要

会員登録(無料)をすることで
物件情報の全てがご覧いただけます。

会員登録(無料)をしていただくと、他社には出回っていない物件情報の収集、
非会員の方には閲覧できない詳細情報、物件資料のダウンロード、
地図での立地確認など会員限定公開情報を閲覧・取得できるようになります。

会員登録(無料)

地図

会員登録後にご覧いただけます。

会員登録(無料)
×
区分
新着・未公開物件情報

登録で 会員規約プライバシーポリシー に同意したものとします。

※必須

会員登録(無料)
物件詳細や公開情報がご覧になれます!