文京区千石にある1階のカフェ・喫茶店居抜き物件のご案内です。

ゲスト

営業時間:9:30~18:30(土日・祝日を除く)

ゲスト

文京区千石にある1階のカフェ・喫茶店居抜き物件のご案内です。

居抜き市場トップ 居抜き物件、貸店舗を探す JR山手線 , 文京区 文京区千石にある1階のカフェ・喫茶店居抜き物件詳細

JR山手線

巣鴨駅

徒歩7

所在地

文京区千石・・・詳細は

巣鴨のカフェ・喫茶店居抜きの厨房
カフェ・喫茶店の居抜き物件の内装

ログイン後に

物件情報の全てがご覧いただけます。

会員登録(無料)
巣鴨のカフェ・喫茶店居抜きの内装

ログイン後に

物件情報の全てがご覧いただけます。

会員登録(無料)
巣鴨のカフェ・喫茶店居抜きの内装

ログイン後に

物件情報の全てがご覧いただけます。

会員登録(無料)
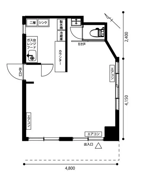
カフェ・喫茶店の居抜き物件の平面図

ログイン後に

物件情報の全てがご覧いただけます。

会員登録(無料)
カフェ・喫茶店の居抜き物件の外観

ログイン後に

物件情報の全てがご覧いただけます。

会員登録(無料)
巣鴨のカフェ・喫茶店居抜きの厨房
カフェ・喫茶店の居抜き物件の内装
巣鴨のカフェ・喫茶店居抜きの内装
巣鴨のカフェ・喫茶店居抜きの内装
カフェ・喫茶店の居抜き物件の平面図
カフェ・喫茶店の居抜き物件の外観
賃料

196,900円(税込)

階数/面積

1F / 8.71坪 (28.82㎡)

敷金・保証金

6ヶ月分

造作代金

550,000円(税込)

飲食条件

飲食可

物件タイプ/現業態

居抜き / カフェ・喫茶店

※会員限定の
情報
ございます。

会員限定の情報がございます。

会員登録(無料)をしていただくと、 物件詳細、物件資料のダウンロード、地図での立地確認など 会員限定の公開情報を閲覧・取得できるようになります。

会員登録(無料)

『千石駅』『巣鴨駅』最寄り、ボードゲーム&カフェ居抜き物件のご案内です。テイクアウトワッフル屋の出店歴あり、パン屋・ケーキ屋等にもおすすめです。新規開業のお客様にも最適な小箱物件!諸条件等、お気軽にお問合せください。

物件概要

会員登録(無料)をすることで
物件情報の全てがご覧いただけます。

会員登録(無料)をしていただくと、他社には出回っていない物件情報の収集、
非会員の方には閲覧できない詳細情報、物件資料のダウンロード、
地図での立地確認など会員限定公開情報を閲覧・取得できるようになります。

会員登録(無料)

地図

会員登録後にご覧いただけます。

会員登録(無料)
×
区分
新着・未公開物件情報

登録で 会員規約プライバシーポリシー に同意したものとします。

※必須

会員登録(無料)
物件詳細や公開情報がご覧になれます!