道路に面した重飲食可能な1階の居抜き店舗のご案内です。

ゲスト

営業時間:9:30~18:30(土日・祝日を除く)

ゲスト

道路に面した重飲食可能な1階の居抜き店舗のご案内です。

居抜き市場トップ 居抜き物件、貸店舗を探す 東京メトロ日比谷線 , 台東区 道路に面した重飲食可能な1階の居抜き店舗詳細

東京メトロ日比谷線

三ノ輪駅

徒歩2

所在地

台東区根岸・・・詳細は

中華料理の居抜き物件の内装
中華料理の居抜き物件の内装

ログイン後に

物件情報の全てがご覧いただけます。

会員登録(無料)
中華料理の居抜き物件の外観

ログイン後に

物件情報の全てがご覧いただけます。

会員登録(無料)
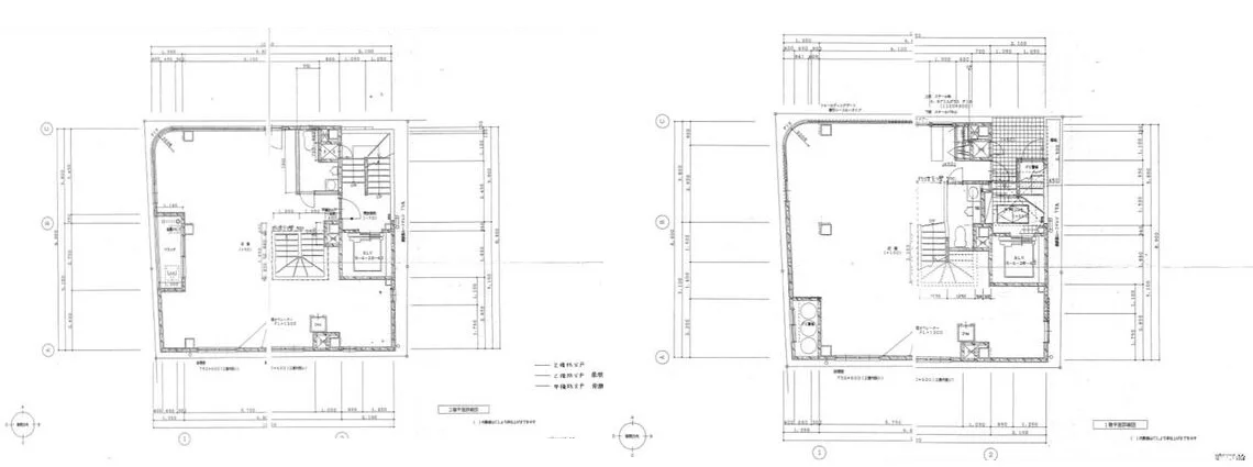
三ノ輪の居抜き店舗の平面図

ログイン後に

物件情報の全てがご覧いただけます。

会員登録(無料)
中華料理の居抜き物件の内装
中華料理の居抜き物件の内装
中華料理の居抜き物件の外観
三ノ輪の居抜き店舗の平面図
賃料

651,200円(税込)

階数/面積

1F~2F / 41.83坪 (138.29㎡)

敷金・保証金

6ヶ月分

造作代金

相談

飲食条件

重飲食可

物件タイプ/現業態

居抜き / 中華料理

※会員限定の
情報
ございます。

会員限定の情報がございます。

会員登録(無料)をしていただくと、 物件詳細、物件資料のダウンロード、地図での立地確認など 会員限定の公開情報を閲覧・取得できるようになります。

会員登録(無料)
  • 路面店

東京メトロ『三ノ輪駅』最寄り!中華料理店居抜き物件のご案内です。視認性良好な路面店!広々とした落ち着く空間の店内は全76席のレイアウト!なかなか出ない40坪超の大箱物件です。諸条件等、お気軽にお問合せください。

物件概要

会員登録(無料)をすることで
物件情報の全てがご覧いただけます。

会員登録(無料)をしていただくと、他社には出回っていない物件情報の収集、
非会員の方には閲覧できない詳細情報、物件資料のダウンロード、
地図での立地確認など会員限定公開情報を閲覧・取得できるようになります。

会員登録(無料)

地図

会員登録後にご覧いただけます。

会員登録(無料)
×
区分
新着・未公開物件情報

登録で 会員規約プライバシーポリシー に同意したものとします。

※必須

会員登録(無料)
物件詳細や公開情報がご覧になれます!