築地駅、1階路面のスケルトン店舗物件のご案内です。

ゲスト

営業時間:9:30~18:30(土日・祝日を除く)

ゲスト

築地駅、1階路面のスケルトン店舗物件のご案内です。

居抜き市場トップ 居抜き物件、貸店舗を探す 東京メトロ日比谷線 , 中央区 築地駅、1階路面のスケルトン店舗物件情報

東京メトロ日比谷線

築地駅

徒歩4

所在地

中央区築地・・・詳細は

貸店舗(スケルトン)の周辺
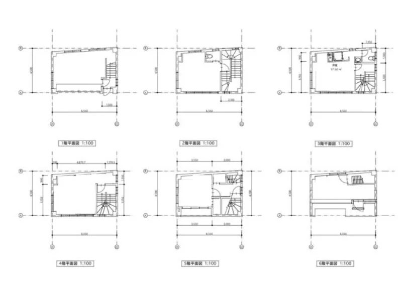
貸店舗(スケルトン)の平面図

ログイン後に

物件情報の全てがご覧いただけます。

会員登録(無料)
築地のスケルトン物件の外観

ログイン後に

物件情報の全てがご覧いただけます。

会員登録(無料)
貸店舗(スケルトン)の周辺
貸店舗(スケルトン)の平面図
築地のスケルトン物件の外観
賃料

660,000円(税込)

階数/面積

1F~6F / 47.3坪 (156.38㎡)

敷金・保証金

8ヶ月分

飲食条件

飲食可

物件タイプ/現業態

スケルトン

※会員限定の
情報
ございます。

会員限定の情報がございます。

会員登録(無料)をしていただくと、 物件詳細、物件資料のダウンロード、地図での立地確認など 会員限定の公開情報を閲覧・取得できるようになります。

会員登録(無料)
  • 路面店

☆☆あかつき公園冒険広場至近☆☆東京メトロ日比谷線『築地』駅から徒歩4分!飲食店相談可能な貸テナントのご紹介です!あかつき公園冒険広場入口の横に位置する1棟1階から6階までの物件です!公園や病院至近でファミリー層の利用が期待できます!ドーナツ屋やブックカフェ、洋食店などをご検討の方におすすめ!各業種等、お気軽にお問合せください!★★

物件概要

会員登録(無料)をすることで
物件情報の全てがご覧いただけます。

会員登録(無料)をしていただくと、他社には出回っていない物件情報の収集、
非会員の方には閲覧できない詳細情報、物件資料のダウンロード、
地図での立地確認など会員限定公開情報を閲覧・取得できるようになります。

会員登録(無料)

地図

会員登録後にご覧いただけます。

会員登録(無料)
×
区分
新着・未公開物件情報

登録で 会員規約プライバシーポリシー に同意したものとします。

※必須

会員登録(無料)
物件詳細や公開情報がご覧になれます!