石川町駅、重飲食可能な1階のスケルトン店舗物件のご案内です。

ゲスト

営業時間:9:30~18:30(土日・祝日を除く)

ゲスト

石川町駅、重飲食可能な1階のスケルトン店舗物件のご案内です。

居抜き市場トップ 居抜き物件、貸店舗を探す JR京浜東北・根岸線 , 横浜市中区 石川町駅、重飲食可能な1階のスケルトン店舗物件情報

JR京浜東北・根岸線

石川町駅

徒歩14

所在地

横浜市中区山元町・・・詳細は

石川町のスケルトン物件の外観
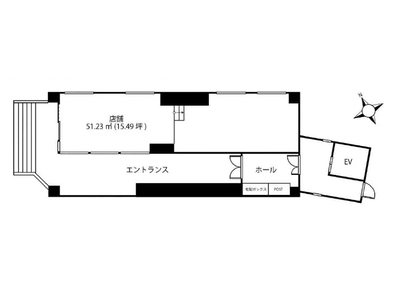
石川町のスケルトン店舗物件の平面図

ログイン後に

物件情報の全てがご覧いただけます。

会員登録(無料)
石川町のスケルトン物件の内装

ログイン後に

物件情報の全てがご覧いただけます。

会員登録(無料)
石川町のスケルトン店舗物件の内装

ログイン後に

物件情報の全てがご覧いただけます。

会員登録(無料)
貸店舗(スケルトン)の内装

ログイン後に

物件情報の全てがご覧いただけます。

会員登録(無料)
石川町のスケルトン物件の外観
石川町のスケルトン店舗物件の平面図
石川町のスケルトン物件の内装
石川町のスケルトン店舗物件の内装
貸店舗(スケルトン)の内装
賃料

200,000円(税込)

階数/面積

1F / 15.49坪 (51.23㎡)

敷金・保証金

6ヶ月分

飲食条件

重飲食可

物件タイプ/現業態

スケルトン

※会員限定の
情報
ございます。

会員限定の情報がございます。

会員登録(無料)をしていただくと、 物件詳細、物件資料のダウンロード、地図での立地確認など 会員限定の公開情報を閲覧・取得できるようになります。

会員登録(無料)

JR『石川町駅』『伊勢佐木長者町駅』最寄り、飲食店ご相談可能な貸店舗のご案内です。階段5段あり半地下ですが、横浜駅根岸道路沿いの視認性良好な路面店です。諸条件等、お気軽にお問合せください。

物件概要

会員登録(無料)をすることで
物件情報の全てがご覧いただけます。

会員登録(無料)をしていただくと、他社には出回っていない物件情報の収集、
非会員の方には閲覧できない詳細情報、物件資料のダウンロード、
地図での立地確認など会員限定公開情報を閲覧・取得できるようになります。

会員登録(無料)

地図

会員登録後にご覧いただけます。

会員登録(無料)
×
区分
新着・未公開物件情報

登録で 会員規約プライバシーポリシー に同意したものとします。

※必須

会員登録(無料)
物件詳細や公開情報がご覧になれます!