武蔵境駅徒歩6分のスケルトン店舗物件のご案内です。

ゲスト

営業時間:9:30~18:30(土日・祝日を除く)

ゲスト

武蔵境駅徒歩6分のスケルトン店舗物件のご案内です。

居抜き市場トップ 居抜き物件、貸店舗を探す JR中央本線 , 武蔵野市 武蔵境駅徒歩6分のスケルトン店舗物件詳細

JR中央本線

武蔵境駅

徒歩6

所在地

武蔵野市境南町・・・詳細は

武蔵境のスケルトン店舗物件の周辺
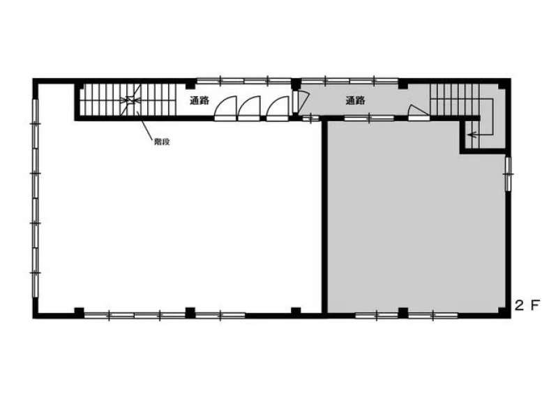
武蔵境のスケルトン店舗物件の平面図

ログイン後に

物件情報の全てがご覧いただけます。

会員登録(無料)
貸店舗(スケルトン)の外観

ログイン後に

物件情報の全てがご覧いただけます。

会員登録(無料)
武蔵境のスケルトン店舗物件の周辺
武蔵境のスケルトン店舗物件の平面図
貸店舗(スケルトン)の外観
賃料

231,000円(税込)

階数/面積

2F / 21.17坪 (70㎡)

敷金・保証金

6ヶ月分

飲食条件

軽飲食可

物件タイプ/現業態

スケルトン

※会員限定の
情報
ございます。

会員限定の情報がございます。

会員登録(無料)をしていただくと、 物件詳細、物件資料のダウンロード、地図での立地確認など 会員限定の公開情報を閲覧・取得できるようになります。

会員登録(無料)
  • 路面店

JR線『武蔵境』駅から徒歩2分、軽飲食相談可能な貸テナントのご紹介です!住宅・店舗立地のビル2階部分の1区画ですが、窓部が広く歩行者からの視認性良好です。駅からアクセス便利な立地で喫茶店や物販店、美容系サロンなどをご検討の方は是非ご内見ください。

物件概要

会員登録(無料)をすることで
物件情報の全てがご覧いただけます。

会員登録(無料)をしていただくと、他社には出回っていない物件情報の収集、
非会員の方には閲覧できない詳細情報、物件資料のダウンロード、
地図での立地確認など会員限定公開情報を閲覧・取得できるようになります。

会員登録(無料)

地図

会員登録後にご覧いただけます。

会員登録(無料)
×
区分
新着・未公開物件情報

登録で 会員規約プライバシーポリシー に同意したものとします。

※必須

会員登録(無料)
物件詳細や公開情報がご覧になれます!