道路に面した1階の物販居抜き店舗のご案内です。

ゲスト

営業時間:9:30~18:30(土日・祝日を除く)

ゲスト

道路に面した1階の物販居抜き店舗のご案内です。

居抜き市場トップ 居抜き物件、貸店舗を探す 東京さくらトラム(都電荒川線) , 荒川区 道路に面した1階の物販居抜き店舗情報

東京さくらトラム(都電荒川線)

三ノ輪橋駅

徒歩1

所在地

荒川区南千住・・・詳細は

物販の居抜き物件のエントランス
物販の居抜き物件の地図

ログイン後に

物件情報の全てがご覧いただけます。

会員登録(無料)
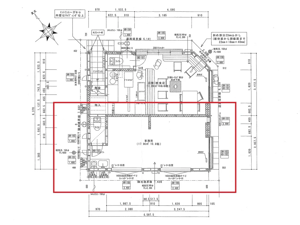
物販の居抜き物件の平面図

ログイン後に

物件情報の全てがご覧いただけます。

会員登録(無料)
物販の居抜き物件のエントランス
物販の居抜き物件の地図
物販の居抜き物件の平面図
賃料

125,400円(税込)

階数/面積

1F / 5.9坪 (19.51㎡)

敷金・保証金

8ヶ月分

造作代金

無償譲渡

飲食条件

飲食可

物件タイプ/現業態

居抜き / 物販

※会員限定の
情報
ございます。

会員限定の情報がございます。

会員登録(無料)をしていただくと、 物件詳細、物件資料のダウンロード、地図での立地確認など 会員限定の公開情報を閲覧・取得できるようになります。

会員登録(無料)
  • 路面店

物販居抜き
駅至近!視認性に優れた角地1階路面店!
地域住民が行き交う生活動線上で集客見込み大!

【インフラ】電灯:有    動力:無    ガス:4号メーター    水道:13mm
【厨房排気】有
【空調】有
【グリスト】無
【トイレ】有
【閉店理由】売上不振  
【営業年数】5ヶ月
【営業時間制限】相談  
【不可業態】相談
【引渡状態】居抜き
※記載の店舗情報は正確性を保証するものではございません。

物件概要

会員登録(無料)をすることで
物件情報の全てがご覧いただけます。

会員登録(無料)をしていただくと、他社には出回っていない物件情報の収集、
非会員の方には閲覧できない詳細情報、物件資料のダウンロード、
地図での立地確認など会員限定公開情報を閲覧・取得できるようになります。

会員登録(無料)

地図

会員登録後にご覧いただけます。

会員登録(無料)
×
区分
新着・未公開物件情報

登録で 会員規約プライバシーポリシー に同意したものとします。

※必須

会員登録(無料)
物件詳細や公開情報がご覧になれます!