重飲食可能な松戸市常盤平にある2階のスケルトン物件のご案内です。

ゲスト

営業時間:9:30~18:30(土日・祝日を除く)

ゲスト

重飲食可能な松戸市常盤平にある2階のスケルトン物件のご案内です。

居抜き市場トップ 居抜き物件、貸店舗を探す 京成松戸線 , 松戸市 重飲食可能な松戸市常盤平にある2階のスケルトン物件情報

京成松戸線

五香駅

徒歩1

所在地

松戸市常盤平・・・詳細は

五香のスケルトン物件の外観
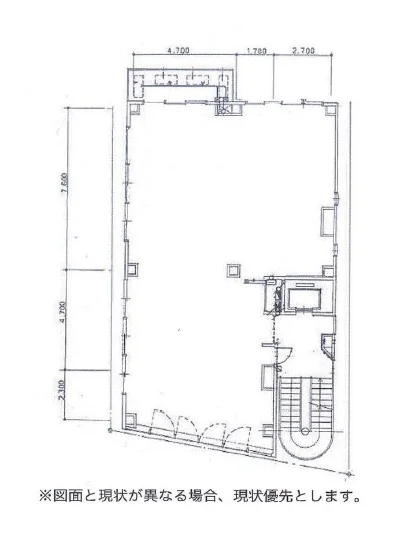
五香のスケルトン店舗物件の平面図

ログイン後に

物件情報の全てがご覧いただけます。

会員登録(無料)
五香のスケルトン物件の外観
五香のスケルトン店舗物件の平面図
賃料

440,000円(税込)

階数/面積

2F / 39.44坪 (130.39㎡)

敷金・保証金

6ヶ月分

飲食条件

重飲食可

物件タイプ/現業態

スケルトン

※会員限定の
情報
ございます。

会員限定の情報がございます。

会員登録(無料)をしていただくと、 物件詳細、物件資料のダウンロード、地図での立地確認など 会員限定の公開情報を閲覧・取得できるようになります。

会員登録(無料)

新京成線『五香駅』から徒歩1分、重飲食相談可能な貸テナントのご紹介です!直近は居酒屋が営業していました。周辺では大手チェーン店含む飲食店が多数盛業中です。西口ロータリー目の前で、駅利用客や周辺住民の集客が期待できます。

物件概要

会員登録(無料)をすることで
物件情報の全てがご覧いただけます。

会員登録(無料)をしていただくと、他社には出回っていない物件情報の収集、
非会員の方には閲覧できない詳細情報、物件資料のダウンロード、
地図での立地確認など会員限定公開情報を閲覧・取得できるようになります。

会員登録(無料)

地図

会員登録後にご覧いただけます。

会員登録(無料)
×
区分
新着・未公開物件情報

登録で 会員規約プライバシーポリシー に同意したものとします。

※必須

会員登録(無料)
物件詳細や公開情報がご覧になれます!