造作無償、世田谷区桜の飲食店居抜き店舗のご案内です。

ゲスト

営業時間:9:30~18:30(土日・祝日を除く)

ゲスト

造作無償、世田谷区桜の飲食店居抜き店舗のご案内です。

居抜き市場トップ 居抜き物件、貸店舗を探す 東急世田谷線 , 世田谷区 造作無償、世田谷区桜の飲食店居抜き店舗詳細

東急世田谷線

上町駅

徒歩9

所在地

世田谷区桜・・・詳細は

上町の居抜き店舗の内装
上町の焼肉屋居抜きの内装

ログイン後に

物件情報の全てがご覧いただけます。

会員登録(無料)
上町の焼肉屋居抜きの厨房

ログイン後に

物件情報の全てがご覧いただけます。

会員登録(無料)
上町の焼肉屋居抜きの厨房

ログイン後に

物件情報の全てがご覧いただけます。

会員登録(無料)
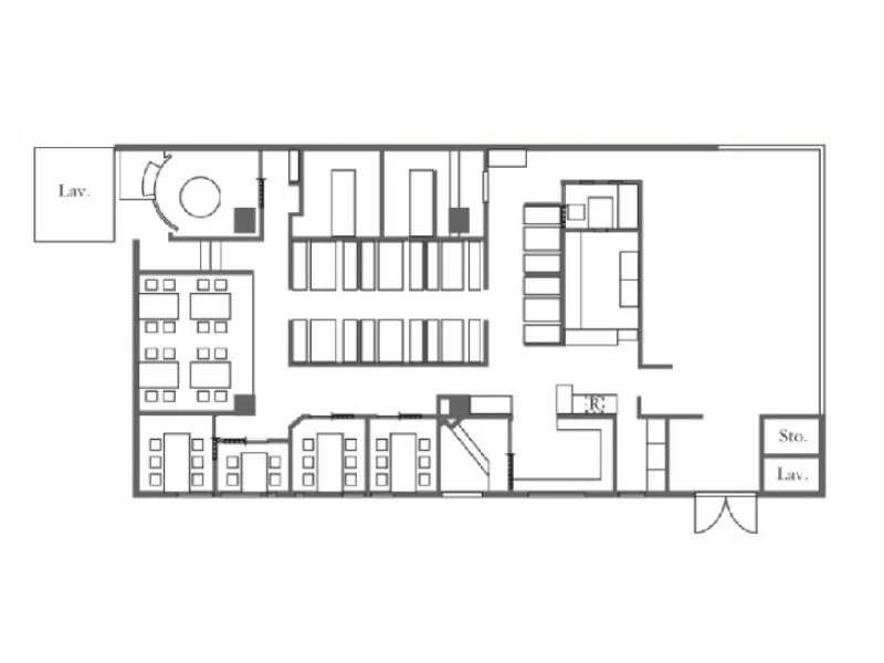
上町の居抜き店舗の平面図

ログイン後に

物件情報の全てがご覧いただけます。

会員登録(無料)
上町の居抜き店舗の外観

ログイン後に

物件情報の全てがご覧いただけます。

会員登録(無料)
上町の居抜き店舗の内装
上町の焼肉屋居抜きの内装
上町の焼肉屋居抜きの厨房
上町の焼肉屋居抜きの厨房
上町の居抜き店舗の平面図
上町の居抜き店舗の外観
賃料

880,000円(税込)

階数/面積

1F / 69.71坪 (230.45㎡)

敷金・保証金

12ヶ月分

造作代金

無償譲渡

飲食条件

飲食可

物件タイプ/現業態

居抜き / 焼肉屋

※会員限定の
情報
ございます。

会員限定の情報がございます。

会員登録(無料)をしていただくと、 物件詳細、物件資料のダウンロード、地図での立地確認など 会員限定の公開情報を閲覧・取得できるようになります。

会員登録(無料)

【再契約不可】東急世田谷線『上町駅』徒歩9分、焼肉店居抜き物件のご紹介です。ゴルフ場とスーパーに併設された店舗のため、ファミリー層の利用が期待出来ます。諸条件等、お気軽にお問合せくださいませ。

物件概要

会員登録(無料)をすることで
物件情報の全てがご覧いただけます。

会員登録(無料)をしていただくと、他社には出回っていない物件情報の収集、
非会員の方には閲覧できない詳細情報、物件資料のダウンロード、
地図での立地確認など会員限定公開情報を閲覧・取得できるようになります。

会員登録(無料)

地図

会員登録後にご覧いただけます。

会員登録(無料)
×
区分
新着・未公開物件情報

登録で 会員規約プライバシーポリシー に同意したものとします。

※必須

会員登録(無料)
物件詳細や公開情報がご覧になれます!