八王子駅徒歩8分の医院居抜き物件のご案内です。

ゲスト

営業時間:9:30~18:30(土日・祝日を除く)

ゲスト

八王子駅徒歩8分の医院居抜き物件のご案内です。

居抜き市場トップ 居抜き物件、貸店舗を探す JR中央本線 , 八王子市 八王子駅徒歩8分の医院居抜き物件情報

JR中央本線

八王子駅

徒歩8

所在地

八王子市寺町・・・詳細は

八王子の医院居抜きの内装
八王子の医院居抜きの内装

ログイン後に

物件情報の全てがご覧いただけます。

会員登録(無料)
医院の居抜き物件の内装

ログイン後に

物件情報の全てがご覧いただけます。

会員登録(無料)
八王子の居抜き店舗の内装

ログイン後に

物件情報の全てがご覧いただけます。

会員登録(無料)
八王子の医院居抜きのその他

ログイン後に

物件情報の全てがご覧いただけます。

会員登録(無料)
八王子の医院居抜きの外観

ログイン後に

物件情報の全てがご覧いただけます。

会員登録(無料)
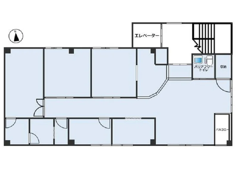
八王子の医院居抜きの平面図

ログイン後に

物件情報の全てがご覧いただけます。

会員登録(無料)
八王子の医院居抜きの内装
八王子の医院居抜きの内装
医院の居抜き物件の内装
八王子の居抜き店舗の内装
八王子の医院居抜きのその他
八王子の医院居抜きの外観
八王子の医院居抜きの平面図
賃料

495,800円(税込)

階数/面積

2F / 40.58坪 (134.17㎡)

敷金・保証金

5ヶ月分

造作代金

相談

飲食条件

飲食不可

物件タイプ/現業態

居抜き / 医院

※会員限定の
情報
ございます。

会員限定の情報がございます。

会員登録(無料)をしていただくと、 物件詳細、物件資料のダウンロード、地図での立地確認など 会員限定の公開情報を閲覧・取得できるようになります。

会員登録(無料)

【再募集】複数路線利用可能『八王子駅』徒歩8分、クリニックの居抜き物件のご紹介です。個室や受付カウンター、多機能トイレあり◎近隣にはコインパーキングがあり利便性良好!各種クリニックはもちろん、美容系サロン等にもおすすめです。ご検討の方はお気軽にレスタンダードまでお問合せください。

物件概要

会員登録(無料)をすることで
物件情報の全てがご覧いただけます。

会員登録(無料)をしていただくと、他社には出回っていない物件情報の収集、
非会員の方には閲覧できない詳細情報、物件資料のダウンロード、
地図での立地確認など会員限定公開情報を閲覧・取得できるようになります。

会員登録(無料)

地図

会員登録後にご覧いただけます。

会員登録(無料)
×
区分
新着・未公開物件情報

登録で 会員規約プライバシーポリシー に同意したものとします。

※必須

会員登録(無料)
物件詳細や公開情報がご覧になれます!