八丁堀駅、1階路面のスケルトン店舗物件のご案内です。

ゲスト

営業時間:9:30~18:30(土日・祝日を除く)

ゲスト

八丁堀駅、1階路面のスケルトン店舗物件のご案内です。

居抜き市場トップ 居抜き物件、貸店舗を探す 東京メトロ日比谷線 , 中央区 八丁堀駅、1階路面のスケルトン店舗物件情報

東京メトロ日比谷線

八丁堀駅

徒歩3

所在地

中央区八丁堀・・・詳細は

八丁堀のスケルトン店舗物件の内装
八丁堀のスケルトン店舗物件の内装

ログイン後に

物件情報の全てがご覧いただけます。

会員登録(無料)
八丁堀のスケルトン店舗物件の内装

ログイン後に

物件情報の全てがご覧いただけます。

会員登録(無料)
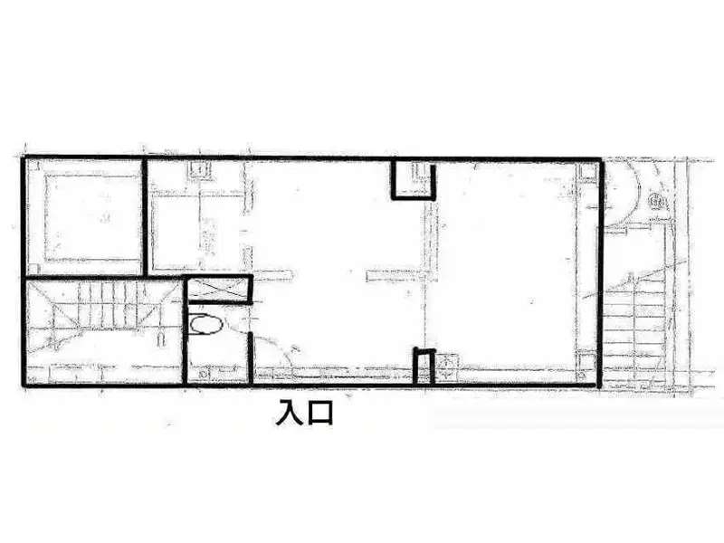
八丁堀のスケルトン物件の平面図

ログイン後に

物件情報の全てがご覧いただけます。

会員登録(無料)
八丁堀のスケルトン物件の内装

ログイン後に

物件情報の全てがご覧いただけます。

会員登録(無料)
八丁堀のスケルトン物件の内装

ログイン後に

物件情報の全てがご覧いただけます。

会員登録(無料)
八丁堀のスケルトン店舗物件の共用部

ログイン後に

物件情報の全てがご覧いただけます。

会員登録(無料)
貸店舗(スケルトン)のトイレ

ログイン後に

物件情報の全てがご覧いただけます。

会員登録(無料)
八丁堀のスケルトン店舗物件の内装
八丁堀のスケルトン店舗物件の内装
八丁堀のスケルトン店舗物件の内装
八丁堀のスケルトン物件の平面図
八丁堀のスケルトン物件の内装
八丁堀のスケルトン物件の内装
八丁堀のスケルトン店舗物件の共用部
貸店舗(スケルトン)のトイレ
賃料

368,500円(税込)

階数/面積

1F / 11.01坪 (36.42㎡)

敷金・保証金

6ヶ月分

飲食条件

飲食可(重飲食不可)

物件タイプ/現業態

スケルトン

※会員限定の
情報
ございます。

会員限定の情報がございます。

会員登録(無料)をしていただくと、 物件詳細、物件資料のダウンロード、地図での立地確認など 会員限定の公開情報を閲覧・取得できるようになります。

会員登録(無料)
  • 路面店

東京メトロ日比谷線『八丁堀駅』徒歩3分、カフェやドリンク店におすすめな貸店舗のご紹介です。直近ではコーヒーショップが営業していた店舗で、引き渡しはスケルトンになります。周辺はオフィス・店舗立地で人通り多く、ビジネスパーソンをはじめとした飲食需要が期待できます。諸条件等、お気軽にお問合せください。

物件概要

会員登録(無料)をすることで
物件情報の全てがご覧いただけます。

会員登録(無料)をしていただくと、他社には出回っていない物件情報の収集、
非会員の方には閲覧できない詳細情報、物件資料のダウンロード、
地図での立地確認など会員限定公開情報を閲覧・取得できるようになります。

会員登録(無料)

地図

会員登録後にご覧いただけます。

会員登録(無料)
×
区分
新着・未公開物件情報

登録で 会員規約プライバシーポリシー に同意したものとします。

※必須

会員登録(無料)
物件詳細や公開情報がご覧になれます!