重飲食可能な1階路面の居抜き物件のご案内です。

ゲスト

営業時間:9:30~18:30(土日・祝日を除く)

ゲスト

重飲食可能な1階路面の居抜き物件のご案内です。

居抜き市場トップ 居抜き物件、貸店舗を探す 京成本線 , 葛飾区 重飲食可能な1階路面の居抜き物件情報

京成本線

京成小岩駅

徒歩6

所在地

葛飾区鎌倉・・・詳細は

京成小岩のダイニングバー居抜きの内装
京成小岩のダイニングバー居抜きの厨房

ログイン後に

物件情報の全てがご覧いただけます。

会員登録(無料)
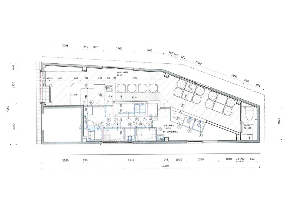
京成小岩のダイニングバー居抜きの平面図

ログイン後に

物件情報の全てがご覧いただけます。

会員登録(無料)
ダイニングバーの居抜き物件の地図

ログイン後に

物件情報の全てがご覧いただけます。

会員登録(無料)
京成小岩の居抜き店舗の外観

ログイン後に

物件情報の全てがご覧いただけます。

会員登録(無料)
京成小岩のダイニングバー居抜きの内装
京成小岩のダイニングバー居抜きの厨房
京成小岩のダイニングバー居抜きの平面図
ダイニングバーの居抜き物件の地図
京成小岩の居抜き店舗の外観
賃料

132,000円(税込)

階数/面積

1F / 13.62坪 (45.04㎡)

敷金・保証金

8ヶ月分

造作代金

1,500,000円(税込)

飲食条件

重飲食可

物件タイプ/現業態

居抜き / ダイニングバー

※会員限定の
情報
ございます。

会員限定の情報がございます。

会員登録(無料)をしていただくと、 物件詳細、物件資料のダウンロード、地図での立地確認など 会員限定の公開情報を閲覧・取得できるようになります。

会員登録(無料)
  • 路面店

☆ダイニングバー居抜き☆
柴又街道沿い、重飲食可能な1階路面店!
美内装!ダクト屋上引き上げ済み!

【インフラ】電灯:有    動力:有    ガス:4号メーター    水道:13mm
【厨房排気】有
【空調】有
【グリスト】有
【席数】テーブル8席・カウンター4席
【トイレ】有
【閉店理由】別事業専念  
【営業年数】3年6ヶ月
【営業時間制限】24時まで  
【不可業態】スナック不可
【引渡状態】居抜き
※記載の店舗情報は正確性を保証するものではございません。

物件概要

会員登録(無料)をすることで
物件情報の全てがご覧いただけます。

会員登録(無料)をしていただくと、他社には出回っていない物件情報の収集、
非会員の方には閲覧できない詳細情報、物件資料のダウンロード、
地図での立地確認など会員限定公開情報を閲覧・取得できるようになります。

会員登録(無料)

地図

会員登録後にご覧いただけます。

会員登録(無料)
×
区分
新着・未公開物件情報

登録で 会員規約プライバシーポリシー に同意したものとします。

※必須

会員登録(無料)
物件詳細や公開情報がご覧になれます!