関内駅徒歩8分のBAR・ショットバー居抜き物件のご案内です。

ゲスト

営業時間:9:30~18:30(土日・祝日を除く)

ゲスト

関内駅徒歩8分のBAR・ショットバー居抜き物件のご案内です。

居抜き市場トップ 居抜き物件、貸店舗を探す JR京浜東北・根岸線 , 横浜市中区 関内駅徒歩8分のBAR・ショットバー居抜き物件情報

JR京浜東北・根岸線

関内駅

徒歩8

所在地

横浜市中区南仲通・・・詳細は

関内のBAR・ショットバー居抜きの外観
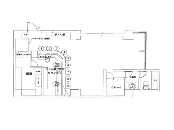
関内のBAR・ショットバー居抜きの平面図

ログイン後に

物件情報の全てがご覧いただけます。

会員登録(無料)
関内のBAR・ショットバー居抜きの外観
関内のBAR・ショットバー居抜きの平面図
賃料

367,081円(税込)

階数/面積

2F / 25.66坪 (84.85㎡)

敷金・保証金

200万円

造作代金

相談

飲食条件

飲食可

物件タイプ/現業態

居抜き / BAR・ショットバー

※会員限定の
情報
ございます。

会員限定の情報がございます。

会員登録(無料)をしていただくと、 物件詳細、物件資料のダウンロード、地図での立地確認など 会員限定の公開情報を閲覧・取得できるようになります。

会員登録(無料)

JR根岸線『関内駅』徒歩8分、バー居抜き物件のご紹介です。スナック等類似業態ご希望の方にもおすすめ!関内エリア、ベイスターズ通りに面した建物2階店舗です。ご検討の方はお気軽にレスタンダードまでお問合せください。

物件概要

会員登録(無料)をすることで
物件情報の全てがご覧いただけます。

会員登録(無料)をしていただくと、他社には出回っていない物件情報の収集、
非会員の方には閲覧できない詳細情報、物件資料のダウンロード、
地図での立地確認など会員限定公開情報を閲覧・取得できるようになります。

会員登録(無料)

地図

会員登録後にご覧いただけます。

会員登録(無料)
×
区分
新着・未公開物件情報

登録で 会員規約プライバシーポリシー に同意したものとします。

※必須

会員登録(無料)
物件詳細や公開情報がご覧になれます!