道路に面した1階のスケルトン貸店舗・テナント物件のご案内です。

ゲスト

営業時間:9:30~18:30(土日・祝日を除く)

ゲスト

道路に面した1階のスケルトン貸店舗・テナント物件のご案内です。

居抜き市場トップ 居抜き物件、貸店舗を探す JR常磐線 , 柏市 道路に面した1階のスケルトン貸店舗・テナント物件詳細

JR常磐線

柏駅

徒歩3

所在地

柏市柏・・・詳細は

柏のスケルトン店舗物件の外観
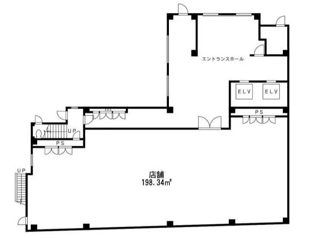
柏のスケルトン店舗物件の平面図

ログイン後に

物件情報の全てがご覧いただけます。

会員登録(無料)
柏のスケルトン店舗物件の外観
柏のスケルトン店舗物件の平面図
賃料

1,319,780円(税込)

階数/面積

1F / 59.99坪 (198.34㎡)

敷金・保証金

10ヶ月分

飲食条件

飲食可

物件タイプ/現業態

スケルトン

※会員限定の
情報
ございます。

会員限定の情報がございます。

会員登録(無料)をしていただくと、 物件詳細、物件資料のダウンロード、地図での立地確認など 会員限定の公開情報を閲覧・取得できるようになります。

会員登録(無料)
  • 路面店

複数路線利用可能『柏駅』徒歩3分、飲食店のご紹介可能な貸テナントのご紹介です。駅前から伸びるサンサン通りに面した商業ビル1階路面店!周辺でも飲食店が多数営業中で、駅利用客の集客が期待できます。諸条件等、お気軽にお問合せください。

物件概要

会員登録(無料)をすることで
物件情報の全てがご覧いただけます。

会員登録(無料)をしていただくと、他社には出回っていない物件情報の収集、
非会員の方には閲覧できない詳細情報、物件資料のダウンロード、
地図での立地確認など会員限定公開情報を閲覧・取得できるようになります。

会員登録(無料)

地図

会員登録後にご覧いただけます。

会員登録(無料)
×
区分
新着・未公開物件情報

登録で 会員規約プライバシーポリシー に同意したものとします。

※必須

会員登録(無料)
物件詳細や公開情報がご覧になれます!