道路に面した重飲食可能な1階の居抜き店舗のご案内です。

ゲスト

営業時間:9:30~18:30(土日・祝日を除く)

ゲスト

道路に面した重飲食可能な1階の居抜き店舗のご案内です。

居抜き市場トップ 居抜き物件、貸店舗を探す 東京さくらトラム(都電荒川線) , 新宿区 道路に面した重飲食可能な1階の居抜き店舗詳細

東京さくらトラム(都電荒川線)

早稲田駅

徒歩2

所在地

新宿区西早稲田・・・詳細は

ラーメンの居抜き物件の内装
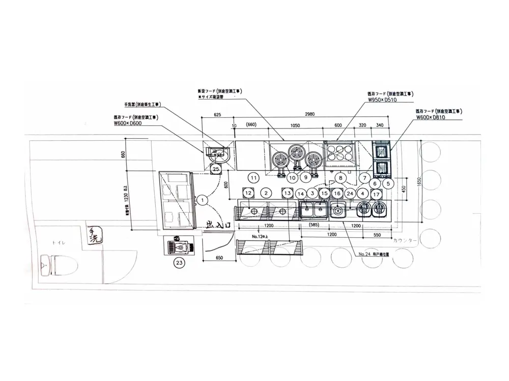
早稲田のラーメン居抜きの平面図

ログイン後に

物件情報の全てがご覧いただけます。

会員登録(無料)
早稲田のラーメン居抜きの外観

ログイン後に

物件情報の全てがご覧いただけます。

会員登録(無料)
早稲田の居抜き店舗の地図

ログイン後に

物件情報の全てがご覧いただけます。

会員登録(無料)
ラーメンの居抜き物件の内装
早稲田のラーメン居抜きの平面図
早稲田のラーメン居抜きの外観
早稲田の居抜き店舗の地図
賃料

217,800円(税込)

階数/面積

1F / 9.32坪 (30.83㎡)

敷金・保証金

8ヶ月分

造作代金

550,000円(税込)

飲食条件

重飲食可

物件タイプ/現業態

居抜き / ラーメン

※会員限定の
情報
ございます。

会員限定の情報がございます。

会員登録(無料)をしていただくと、 物件詳細、物件資料のダウンロード、地図での立地確認など 会員限定の公開情報を閲覧・取得できるようになります。

会員登録(無料)
  • 路面店
  • 値下げ

☆ラーメン居抜き☆
早稲田駅と早稲田大学の間で学生の集客見込み◎
テーブル・カウンター計14席、重飲食可!

【インフラ】電灯:有    動力:有    ガス:6号メーター    水道:20mm
【厨房排気】有 / 換気扇
【空調】有 / 業務用
【グリスト】有 / 地中埋設型
【席数】カウンター6席 テーブル8席 
【トイレ】有 / 洋式
【閉店理由】体調不良  
【営業年数】4年6ヶ月
【営業時間制限】なし  
【不可業態】臭い・煙の強い業態
【引渡状態】居抜き
【間口】約2.0m
【天高】約2.5m
※記載の店舗情報は正確性を保証するものではございません。

物件概要

会員登録(無料)をすることで
物件情報の全てがご覧いただけます。

会員登録(無料)をしていただくと、他社には出回っていない物件情報の収集、
非会員の方には閲覧できない詳細情報、物件資料のダウンロード、
地図での立地確認など会員限定公開情報を閲覧・取得できるようになります。

会員登録(無料)

地図

会員登録後にご覧いただけます。

会員登録(無料)
×
区分
新着・未公開物件情報

登録で 会員規約プライバシーポリシー に同意したものとします。

※必須

会員登録(無料)
物件詳細や公開情報がご覧になれます!